Request a viewing

  • This field is for validation purposes and should be left unchanged.

Description
brochure Brochure
location Location
floorplan Floorplan
Overview
Detached
486 sq m
6
5
7

Situated in undulating landscape between the Wicklow Mountains and the sea, Ballymurrin Quaker Farmstead forms an attractive, historic courtyard dating from 1668, when Ambrose and Anne Judd settled, leasing the lands in perpetuity from the Earl of Rosse of Birr Castle. Created over fifty years, their fascinating legacy exists in the fabric – thick stone walls, stone inglenook fireplaces, bake ovens, massive beams, even a woven hazel and clay-built beehive forge chimney. The Judds created a home of restrained interiors with beautifully proportioned spaces – including a Meeting Room – adding a Coach House, Forge, Stables, Milking Parlour and a dower wing known today as Box Tree Cottage, alongside gardens, privies and a Burial Ground. This peace-loving Quaker family extended generosity locally, even offering refuge to priests during the Penal Code, and throughout the years their home grew to accommodate their married children and families. Ballymurrin House has enjoyed 350 years of continual occupation, testament to its multiple merits; it offers a tantalising glimpse into the past whilst providing a wonderful and comfortable home today.

Superbly presented throughout having been sympathetically restored and upgraded over the years by its conservation architect owners, Ballymurrin Quaker Farmstead needs to be seen to be fully appreciated. The house enjoys wonderful privacy, accessed via a shared tree-lined laneway into an attractive gravelled courtyard.

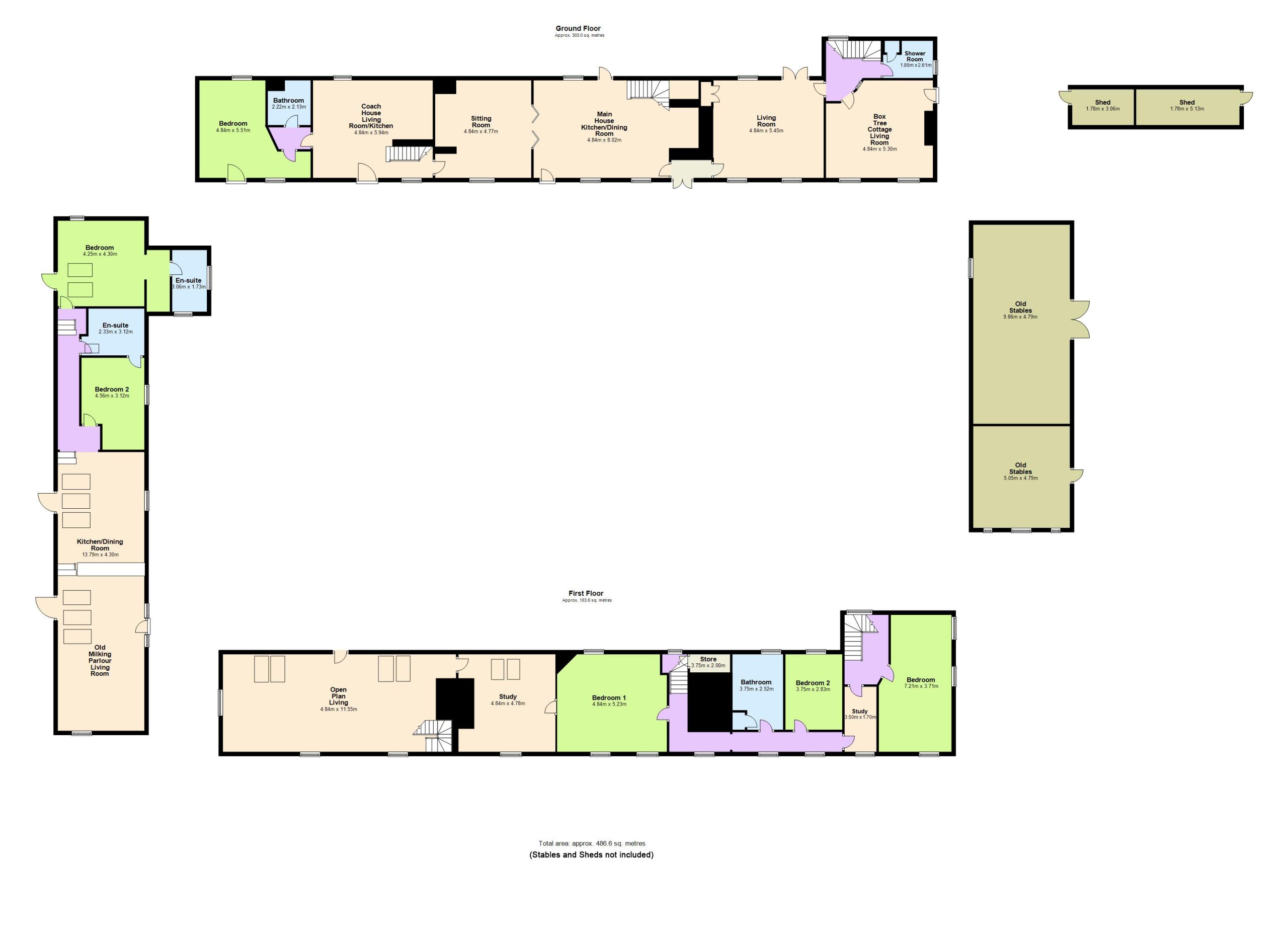
The main structure currently incorporates three self-contained homes, having been cleverly and sympathetically separated over the years to create flexible accommodation. Both Box Tree Cottage and The Coach House can be seamlessly reunited with The Farmhouse, by virtue of the fact that original doors are retained in place behind bookcases/cupboards and the like. Running perpendicular to the Farmhouse, the Old Milking Parlour, a fully self-contained unit with garden, forms the south frontage of the courtyard and opposite, the Old Stables create the north frontage, with garden and outhouses.

These comprise:

The Farmhouse                                                                                                                                                                                                                                                                                         Approx. 177 sq. m / 1,905 sq. ft.

Located in the centre of this ancient farmstead and presently in use as the family home, a front door opens into the charming country kitchen with original hearth Incorporating a fascinating stone corbelled bread oven, with the addition of a more modern Stanley Range. A half door provides access to the south facing patio at the rear, while a staircase ascends to the bedroom accommodation upstairs. To the left of the kitchen is a Parlour with a glass-fronted stove situated in its inglenook.

The main front door opens into an entrance space leading to the kitchen on one side and a bright and attractive drawing room on the other. Here, where Quaker meetings were held in the 1700s, there is now a glass fronted stove and glazed double doors to the rear patio courtyard. Upstairs, there are two double bedrooms and a well-appointed family bathroom. The main bedroom links to a bright room, currently serving as a home office, which could easily become an en-suite bathroom with dressing room.

The Coach House                                                                                                                                                                                                                                                                                       Approx. 112 sq. m / 1,205 sq. ft.

To the left of The Farmhouse, this unique space has been in use as a holiday rental over recent years. It comprises an open plan living room / kitchen and a clay and wattle inglenook chimney and oven, once used as a forge. Adjacent is a smartly designed double bedroom and fully accessible shower room. The first floor opens to a bright, large space with an open trussed roof and several large Velux roof lights. This wonderful and flexible space with a Juliette balcony to the garden offers significant flexibility as further bedroom accommodation, as a games room or a studio.

Box Tree Cottage                                                                                                                                                                                                                                                                                        Approx. 77 sq. m / 828 sq. ft.

To the right of The Farmhouse, an external green timber doorway opens to this most attractive property, named after its ancient box tree, with the benefit of its own private garden. This served as a Dower House in the mid-18th Century. It features more intricate detailing of woodwork on the window surrounds and staircase. From an open plan living room / kitchen with a glass stove, there is a hallway leading to a recently modernised bathroom with underfloor heating. Upstairs there is a spacious double bedroom and separate study / nursery.

The Old Milking Parlour                                                                                                                                                                                                                                                                        Approx. 116 sq. m / 1,248 sq. m

The Old Milking Parlour provides a separate accommodation wing and has been rented over recent years. Comprising a spectacular stepped living space with full height pitched ceilings with skylights flooding the rooms with natural light to include a living room with stove, fully fitted eat-in kitchen and two double bedrooms, both with en-suite shower rooms. There is the benefit of a private garden to the rear accessed off the kitchen and main bedroom alike.

Grounds

Opposite the Milking Parlour the re-roofed Old Stables currently provide home storage. With previous planning permission for residential accommodation, (now lapsed) they offer significant opportunity for conversion. Behind the Farmhouse, The First Farmstead, once hidden by ivy growth, makes an attractive feature of an outdoor exhibition and barbeque area.

The grounds of Ballymurrin Quaker Farmstead, 1.5 acres, are exceptionally mature and private and include an expanse of lawn to the front with a sunken patio area, ideal for al-fresco entertaining. To the rear of the house is a raised expanse of grass, which has been re-wilded, below which steps provide access to the west-facing patio off the kitchen.
Ballymurrin Quaker Farmstead is an exceptional and characterful property which would appeal to a broad spectrum of buyers, from those seeking additional rental income, to those who prefer to return the property to a large country house. The Old Milking Parlour creates additional opportunities for an events space/home office/exhibition space.

 

Show more
Location & Amenities

Ballymurrin Quaker Farmstead is ideally located within an hour’s drive along the M11 from Dublin City Centre yet is set within Wicklow’s stunning natural landscapes. Nearby amenities include the National Botanic Gardens in Kilmacurragh, while Brittas Bay Beach and Blainroe Golf Club are less than 15 minutes by car. Outdoor enthusiasts can explore numerous walking trails, hiking routes and nearby equestrian facilities.

Wicklow town is only 8km and provides a host of shops, supermarkets, bars, restaurants and leisure amenities to include Wicklow Tennis Club, Coral Leisure Centre and Wicklow Harbour. There is a great selection of primary and secondary schools nearby while transport rail-links and bus routes.

Show more
Show less
Show more
Features
  • Geothermal Central Heating (The Old Milking Parlour and The Coach House)
  • Oil Fired Central Heating (The Farmhouse)
  • Electric Heating (Box Tree Cottage)Fully serviced effluent treatment system
  • Private well with filtration and UV filter 2022
  • Previous planning permission to convert The Old Stable Block to residential use.
  • Superb income potential
  • Currently benefits from Section 482 tax relief
Show more
Show less
Show more
Notice

Please note we have not tested any apparatus, fixtures, fittings, or services. Interested parties must undertake their own investigation into the working order of these items. All measurements are approximate and photographs provided for guidance only.

Show more
Show less
Show more

 

Brochure front

60652_R_2_0_Ballymurrin Quaker Farmstead

Ballymurrin House, Ballymurrin Lower, Kilbride, Co. Wicklow

€1,500,000

A truly captivating and historically important family home dating back over 350 years, built c.1668 as a Quaker farmstead – presently comprising four self-contained homes on approx. 1.5 acres of mature, private grounds

Download brochure